Nowy w stanie deweloperskim

Opis

Sprzedamy wygodny dom jednorodzinny w stanie deweloperskim.
Zlokalizowany w odległości 10 km od Szamotuł, pośród zabudowy jednorodzinnej.
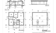
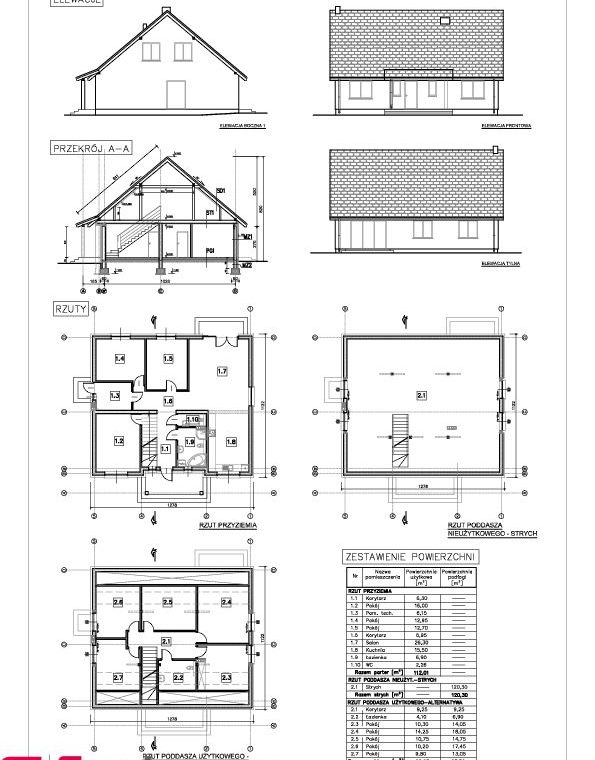
Funkcjonalny układ pomieszczeń, w skład którego wchodzą trzy niezależne sypialnie ( 16,13 i 12 m2), salon 26m2 oraz półotwarta kuchnia ( z możliwością całkowitego zamknięcia ścianką) o pow.15,5 m2. W domu przewidziano również kotłownię ( z oddzielnym wyjściem na zewnątrz), WC oraz przestronna łazienkę (6,9m2) z wanną oraz prysznicem. W korytarzu sporo miejsca  na zabudowę garderobianą lub miejsce na schody w przypadku adaptacji poddasza na cele mieszkaniowe. Projekt umożliwia adaptacje poddasza i powiększenie powierzchni mieszkalnej o ponad 110 m2.

Budynek wykonany w standardzie podwyższonym: solidny dach, dwuspadowy, pokryty dachówką ceramiczną, tynki gipsowe plus szpachlowanie ( wymalowane na biało), we wszystkich oknach rolety zewnętrzne, rozprowadzony system ogrzewania – ogrzewanie podłogowe na całej powierzchni. Proponowany system ogrzewania : peled – piec zamontowany w kotłowni.   Wodociąg miejski.

Do dyspozycji właściciela działka o powierzchni ponad 700m2.

Więcej informacji,kontakt i prezentacja 535 425 300 Agnieszka Noske
ZAKUP OD DEWELOPERA – KUPUJĄCY NIE PŁACI PODATKU PCC.
BEZPŁATNA POMOC PRZY UZYSKANIU KORZYSTNEGO KREDYTU HIPOTECZNEGO

Pomimo że pracownicy naszego biura przykładają szczególną staranność do rzetelnego prezentowania informacji o nieruchomości, nie zawsze jest możliwa weryfikacja wszystkich danych przekazanych od osób trzecich. Niniejsza prezentacja oferty nie jest ofertą w rozumieniu Kodeksu Cywilnego i ma charakter informacyjny.

Oferta nr 145740255 wysłana z systemu LocumNet Online

Szczegóły oferty

  • Numer: 145740255
  • Typ: Domy
  • Bez prowizji: nie
  • Status: Sprzedaż
  • Miejscowość: Szamotuły
  • Powierzchnia: 112 m2
  • Działka: 690 m2
  • Ilość pokoi: 4
  • Beds: 3